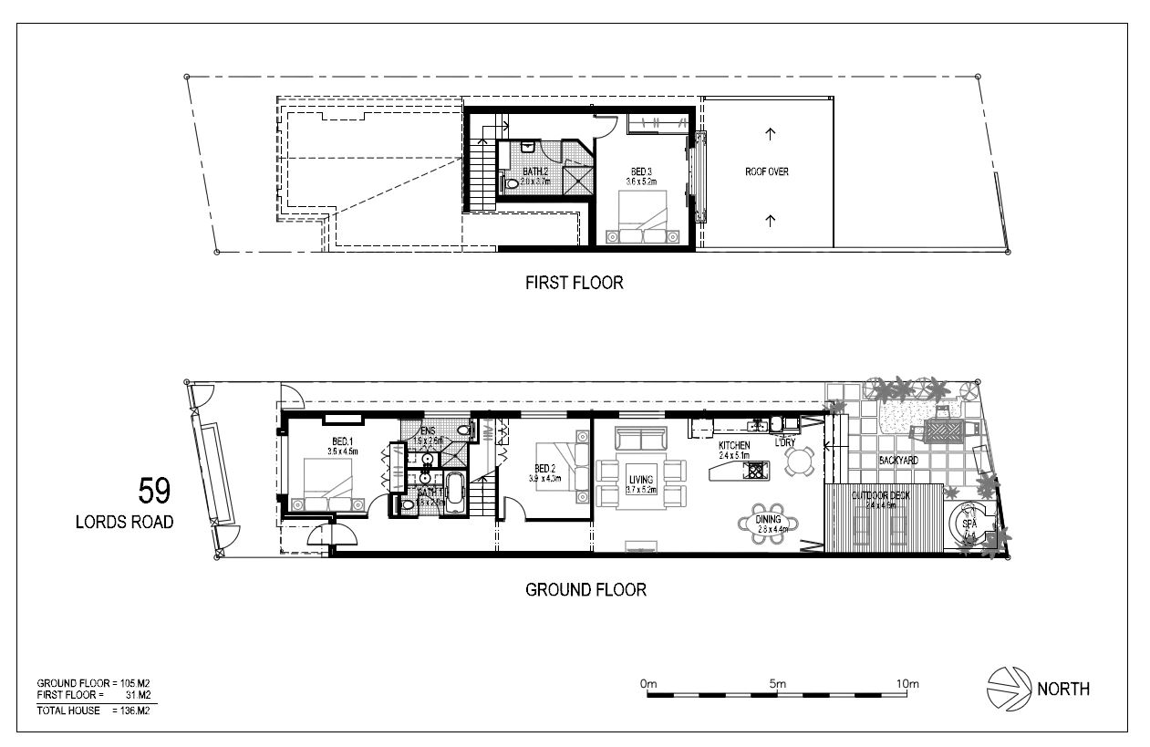
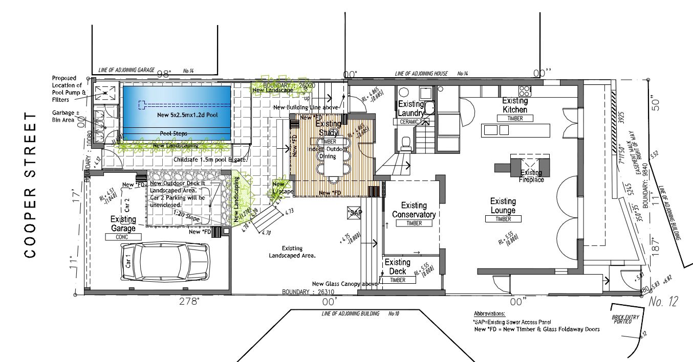
Portfolio Still Gallery
Design by Simon Jonid. (Please click on the image thumbnails for larger image)